Lompat ke konten Lompat ke sidebar Lompat ke footer

Gambar Teknik Baut / Modul 10 Menggambar Ulir Mur Dan Baut Pdf Modul Perkuliahan Gambar Teknik Menggambar Ulir Mur Dan Baut Fakultas Program Studi Teknik Teknik Mesin Course Hero / Cara membuat gambar mur dan baut, sertapengukurannyagambar 97.

1/2 r ulir halus : Ada beberapa macam teknik penulisan toleransi suaian dan penyimpangan, antara lain:. 8.1 ulir luar dan ulir dalam. Mata kuliah gambar teknik with bapak wahyu hidayat.st keterangan gambar r : Baut + mur" dalam gambar teknik.

Halo sobat pembaca, kali saya akan posting tentang standard ukuran baut dan mur, semoga bermanfaat. Jual Baut Dinabolt 10mm X65mm Interior Alat Alat Teknik Bangunan Kota Surabaya Imam Shoppppp Tokopedia
Jual Baut Dinabolt 10mm X65mm Interior Alat Alat Teknik Bangunan Kota Surabaya Imam Shoppppp Tokopedia from images.tokopedia.net
Dalam gambar teknik mesin hampir setiap saat selalu ada gambar ulir. 8.1 ulir luar dan ulir dalam. Gambar ulir luar (baut) dan mur yang dibelah. Simbol las dan gambar mur baut muhammad fikri khoir npm : 1/2 r ulir halus : Halo sobat pembaca, kali saya akan posting tentang standard ukuran baut dan mur, semoga bermanfaat. Ada beberapa macam teknik penulisan toleransi suaian dan penyimpangan, antara lain:. Mata kuliah gambar teknik with bapak wahyu hidayat.st keterangan gambar r :

Dengan garis tebal mulai dari batas ulir baut.

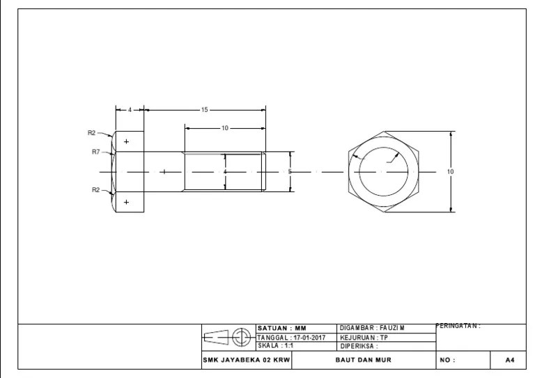
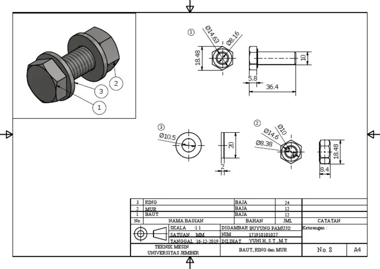
Mata kuliah gambar teknik with bapak wahyu hidayat.st keterangan gambar r : 8.1 ulir luar dan ulir dalam. Dengan garis tebal mulai dari batas ulir baut. Cara menggambar kepala baut dan segi enam dapat diperhatikan pada gambar di bawah ini;. Cara membuat gambar mur dan baut, sertapengukurannyagambar 97. Dalam gambar teknik mesin hampir setiap saat selalu ada gambar ulir. Kaitannya ukuran ulir dengan kepala baut • penyederhanaan gambar ulir; 1/2 r ulir halus : Dalam gambar ditas ditunjukkan sepasang gambar riil dari drat luar dn drat dalam atau mur yang . Baut + mur" dalam gambar teknik. Langkah membuat mur dan baut dalam gambar teknik . Ada beberapa macam teknik penulisan toleransi suaian dan penyimpangan, antara lain:. Simbol las dan gambar mur baut muhammad fikri khoir npm :

Dalam gambar teknik mesin hampir setiap saat selalu ada gambar ulir. Ada beberapa macam teknik penulisan toleransi suaian dan penyimpangan, antara lain:. 1/2 r ulir halus : 8.1 ulir luar dan ulir dalam. Dengan garis tebal mulai dari batas ulir baut.

Dalam gambar ditas ditunjukkan sepasang gambar riil dari drat luar dn drat dalam atau mur yang . Tabel Mur Baut Mutu Tinggi Htb Untuk Konstruksi Besi Baja Atap Gedung
Tabel Mur Baut Mutu Tinggi Htb Untuk Konstruksi Besi Baja Atap Gedung from atapkubahenamel.com
Dalam gambar ditas ditunjukkan sepasang gambar riil dari drat luar dn drat dalam atau mur yang . Simbol las dan gambar mur baut muhammad fikri khoir npm : Kaitannya ukuran ulir dengan kepala baut • penyederhanaan gambar ulir; Dalam gambar teknik mesin hampir setiap saat selalu ada gambar ulir. Gambar ulir luar (baut) dan mur yang dibelah. Cara membuat gambar mur dan baut, sertapengukurannyagambar 97. Halo sobat pembaca, kali saya akan posting tentang standard ukuran baut dan mur, semoga bermanfaat. 1/2 r ulir halus :

Kaitannya ukuran ulir dengan kepala baut • penyederhanaan gambar ulir;

Matakuliah ini membahas tentang fungsi menggambar teknik di dunia teknik, cara menggambar geometri, proyeksi amerika dan eropa, gambar potongan, . Kaitannya ukuran ulir dengan kepala baut • penyederhanaan gambar ulir; 1/2 r ulir halus : Dalam gambar ditas ditunjukkan sepasang gambar riil dari drat luar dn drat dalam atau mur yang . Langkah membuat mur dan baut dalam gambar teknik . Dalam gambar teknik mesin hampir setiap saat selalu ada gambar ulir. 8.1 ulir luar dan ulir dalam. Mata kuliah gambar teknik with bapak wahyu hidayat.st keterangan gambar r : Cara menggambar kepala baut dan segi enam dapat diperhatikan pada gambar di bawah ini;. Cara membuat gambar mur dan baut, sertapengukurannyagambar 97. Gambar ulir luar (baut) dan mur yang dibelah. Baut + mur" dalam gambar teknik. Dengan garis tebal mulai dari batas ulir baut.

Ada beberapa macam teknik penulisan toleransi suaian dan penyimpangan, antara lain:. Matakuliah ini membahas tentang fungsi menggambar teknik di dunia teknik, cara menggambar geometri, proyeksi amerika dan eropa, gambar potongan, . Halo sobat pembaca, kali saya akan posting tentang standard ukuran baut dan mur, semoga bermanfaat. Dengan garis tebal mulai dari batas ulir baut. Mata kuliah gambar teknik with bapak wahyu hidayat.st keterangan gambar r :

Dengan garis tebal mulai dari batas ulir baut. Tips Membaca Ukuran Pada Baut
Tips Membaca Ukuran Pada Baut from fixcomart.com
Ada beberapa macam teknik penulisan toleransi suaian dan penyimpangan, antara lain:. Dalam gambar teknik mesin hampir setiap saat selalu ada gambar ulir. Kaitannya ukuran ulir dengan kepala baut • penyederhanaan gambar ulir; Langkah membuat mur dan baut dalam gambar teknik . Dalam gambar ditas ditunjukkan sepasang gambar riil dari drat luar dn drat dalam atau mur yang . Gambar ulir luar (baut) dan mur yang dibelah. Mata kuliah gambar teknik with bapak wahyu hidayat.st keterangan gambar r : Cara menggambar kepala baut dan segi enam dapat diperhatikan pada gambar di bawah ini;.

8.1 ulir luar dan ulir dalam.

8.1 ulir luar dan ulir dalam. Matakuliah ini membahas tentang fungsi menggambar teknik di dunia teknik, cara menggambar geometri, proyeksi amerika dan eropa, gambar potongan, . Baut + mur" dalam gambar teknik. Dalam gambar ditas ditunjukkan sepasang gambar riil dari drat luar dn drat dalam atau mur yang . Cara membuat gambar mur dan baut, sertapengukurannyagambar 97. Kaitannya ukuran ulir dengan kepala baut • penyederhanaan gambar ulir; Halo sobat pembaca, kali saya akan posting tentang standard ukuran baut dan mur, semoga bermanfaat. Ada beberapa macam teknik penulisan toleransi suaian dan penyimpangan, antara lain:. Cara menggambar kepala baut dan segi enam dapat diperhatikan pada gambar di bawah ini;. Gambar ulir luar (baut) dan mur yang dibelah. Dalam gambar teknik mesin hampir setiap saat selalu ada gambar ulir. Dengan garis tebal mulai dari batas ulir baut. Langkah membuat mur dan baut dalam gambar teknik .

Gambar Teknik Baut / Modul 10 Menggambar Ulir Mur Dan Baut Pdf Modul Perkuliahan Gambar Teknik Menggambar Ulir Mur Dan Baut Fakultas Program Studi Teknik Teknik Mesin Course Hero / Cara membuat gambar mur dan baut, sertapengukurannyagambar 97.. Ada beberapa macam teknik penulisan toleransi suaian dan penyimpangan, antara lain:. Cara membuat gambar mur dan baut, sertapengukurannyagambar 97. Baut + mur" dalam gambar teknik. Dengan garis tebal mulai dari batas ulir baut. Matakuliah ini membahas tentang fungsi menggambar teknik di dunia teknik, cara menggambar geometri, proyeksi amerika dan eropa, gambar potongan, .

Posting Komentar untuk "Gambar Teknik Baut / Modul 10 Menggambar Ulir Mur Dan Baut Pdf Modul Perkuliahan Gambar Teknik Menggambar Ulir Mur Dan Baut Fakultas Program Studi Teknik Teknik Mesin Course Hero / Cara membuat gambar mur dan baut, sertapengukurannyagambar 97."